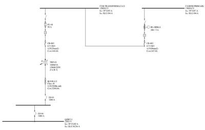
Clique nas imagens para ampliar estudo de coordenação e seletividade
O estudo de coordenação e seletividade é uma importante ferramenta para se garantir a operação segura e eficiente dos sistemas elétricos de potência. Ele serve para identificar e corrigir problemas que possam ocorrer nos sistemas elétricos e de subestações, melhorando a qualidade do sistema e a segurança na operação. O que é estudo de coordenação e seletividade? estudo de coordenação e seletividade é o processo de avaliação dos relés de proteção e seletividade, que faz parte do sistema elétrico de potência (SEP). Ele consiste em verificar o tempo em que o disjuntor é acionado de acordo com as configurações de tempo dos relés de proteção e seletividade.
O objetivo é realizar a coordenação da abertura do disjuntor com base nas informações de tempo obtidas no estudo para que, em caso de desligamento de um dispositivo, não ocorra a abertura de toda a subestação. Como funciona o Estudo de Seletividade e Coordenação? O Estudo é realizado por um engenheiro especializado em sistemas elétricos de potência. O técnico vai analisar as características do sistema elétrico, como a quantidade de dispositivos, o circuito de distribuição de energia e a potência instalada. Com essas informações, é possível verificar os tempos de abertura dos relés de proteção e seletividade para que ocorra a coordenação desses dispositivos.
Vantagens do estudo de coordenação e seletividade
- Maior segurança na operação: Além de garantir que os dispositivos de proteção e seletividade estejam adequadamente coordenados, o Estudo de Seletividade e Coordenação também ajuda a evitar múltiplas descargas elétricas devido a uma falha, reduzindo os danos ao sistema elétrico.
- Controle de falhas: O estudo de seletividade e coordenação permite que se determine o local exato onde ocorreu a falha, o que facilita e agiliza a resolução do problema.
- Redução de custos: Com o aumento da segurança e precisão na operação do sistema elétrico de potência, ocorre uma redução nos custos com manutenções e possíveis falhas.
O Estudo de Seletividade e Coordenação é de extrema importância para a segurança na operação dos sistemas elétricos de potência. Para manter seu sistema elétrico seguro e eficiente, conheça os serviços da Jund Light, uma empresa especializada em sistema elétrico de potência (SEP).
Para saber mais sobre Estudo de coordenação e seletividade
Ligue para 11 2449-3428 ou clique aqui e entre em contato por email.Gostou? compartilhe!



